ELECTRICALS - Designing and new solutions for electrical components



METALLIC ENCLOSURE BOXES
FOR HEAVY DUTY LOW POWER (up to 1500 Watt) ELECTRICAL EQUIPMENT




Paralelipipedic enclosure boxes with bounded vertical corners and bottom edge larmier.

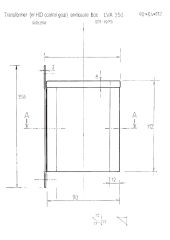
There are suitable for low power (less then 1000 Watt) transformers, HID lamps' (electromagnetic or electronic) ballasts, dimmers, and other kind of electric or electronic equipments.


The enclosed equipment may be included, or not, in a compact synthetic reisin or other kind of heat-conductive (conductivity) and electric-insulating mass.

For instance - the transformers, the HID lamps' ballasts, and other static electrical equipment that do not require any maintenance.

Other kind of electrical or electronical equipment which require any maintenance must be enclosed in un-filled (non-filled) enclosure boxes.



Advantages :

1 - Simple, and pleasant shapes.

2 - Easy for manufacturing. Minimal number of plate cuttings, bendings or pressings.

3 - It is a completely arounded enclosure. Therefore it has a completely magnetical shielding.

4 - High vibration-proof and noise-proof degree for synthetic reisin filled boxes.

5 - There may to include more electrical equipments which work together, in only one box.

6 - The bottom side has an enough large surface to host many connecting contact plugs.

7 - The contact connections may be "on-board" of the bottom side, or having only out-going cables for a remotely connection.


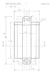
LPN 400 box - side view. LPN 400 box - back view. LVF 400 box - side view. LVF 400 box - cross section.

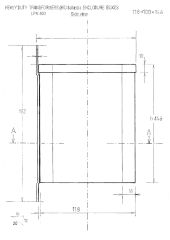
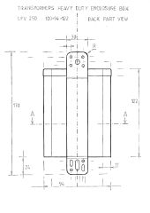
LVF 250 box - side view. LVF 250 box - back view. LPN 150 box - side view. LPN 150 box - cross section.

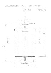
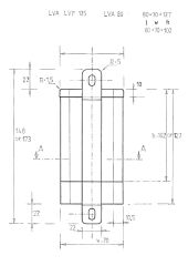
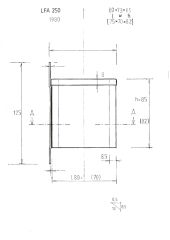
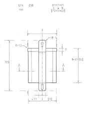
LVA 250 box - side view. LVA 250 box - back view. LFA 250 box - side view. LFA 250 box - back view.

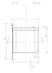
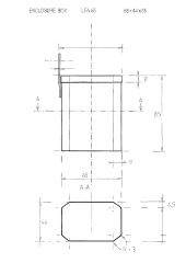
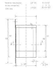
LVF 75, 125 box - side view. LVF 75, 125 box - back view. LFA 16 box - side view.


247
main page

Electricals © 2005 - All rights reserved